



















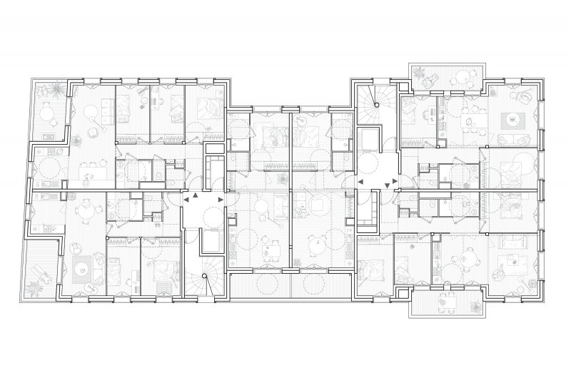
programme : 25 logements locatifs sociaux + crèche de 68 berceaux
lieu : lot e2, secteur d'aménagement paul meurice, paris 20e
maîtrise d'ouvrage : élogie-siemp
aménageur: paris & métropole aménagement
maîtrise d’œuvre : hub architectes (t.dantec, r.masson, e.danton) + nicolas lombardi architecture, avec bianchimajer, eoc, innovation fluides, transsolar, alternative acoustique, atec
surface/coût travaux : 2739 m² sdp / 6.55 M € ht
performance environnementale : plan climat ville de paris, rt 2012 - 20%, E3C2 du label E+C-
statut : concours lauréat 2018, mission complète, livré en 2024
crédits photos / illustration : guillaume amat / martin boullay
Le lot E2 est le point final de l’opération de refonte de la porte des Lilas qui opère une transition d’échelle entre les imposantes masses construites à front de périphérique et le tissu délicat des villas faubouriennes. Forme urbaine, matérialité des bâtiments déjà édifiés, les réminiscences de la ceinture HBM toute proche sont implicites. Nous poursuivons la relecture de cet héritage architectural dans la perspective d’y intégrer les exigences environnementales E3C2.
L’organisation spatiale tire parti d'une morphologie urbaine qui alterne bandes construites et végétales de largeur 12m. Les logements familiaux (T3, T4 et T5) sont ainsi tous traversants avec des chambres orientées au Nord sur jardin et des séjours largement ouverts vers le Sud. En couronnement du bâtiment de cœur d’îlot, la crèche se développe sur les deux derniers niveaux et offre aux enfants un jardin suspendu en toiture.
Le principe structurel d’une ossature poteaux/poutres favorise la superposition des programmes (crèche et logements) tout en ouvrant une organisation flexible et évolutive dans le temps. La matérialité unique du parement brique (en continuité des bâtiments de logements voisins) ainsi que le rythme régulier des ouvertures participent de cette lecture indifférenciée de l’imbrication des programmes.



























programme : complexe commercial, tertiaire et hôtelier
lieu : saint-pierre de la réunion
maîtrise d'ouvrage : icade promotion pour la sccv casabona
maîtrise d’œuvre : hub architectes mandataire (t.dantec, r.masson, m.notter, r.lombard) + dpv avec cotel, fedt, site, zone-up, alternative
surface/coût travaux : 21 138 m2 sdp / 31.6 M € ht
statut : commande directe, mission complète, livraison 2022
crédits : schnepp renou + charly chapelet + antoine seguin
Au carrefour des axes structurants de l'île de la Réunion, Casabona est un quartier en plein développement. En entrée de Saint-Pierre, le projet de complexe commercial, tertiaire et hôtelier est une coproduction dont l'ambition est de former un nouvel épicentre d'activités pour le sud de l'île. Ni simplement centre commercial, ni simplement centre tertiaire, le projet juxtapose les fonctions.
3 espaces commerciaux archétypaux structurent en creux les aménagements. La galerie longeant le jardin, le passage couvert cadrant la mer et la petite place très urbaine forment ensemble un grand espace ouvert de nature publique qui prolonge l'environnement proche de la ville et/ou qui ouvre au grand paysage.
La forte densité du programme implique une organisation spatiale originale. En profitant de la déclivité du terrain, le parking de plus de 500 places, largement ventilé, est logé en infrastructure. Exit le "no car, no business" imposant la prédominance visuelle du parking. Ici ce sont les aménagements paysagers qui participent d'une image qualitative pour l'entrée de ville de Saint-Pierre.


























programme : 20 logements collectifs, mise en application du permis d'innover
lieu : lot a4b, zac canal europe, évry-courcouronnes
maîtrise d'ouvrage : nexity
aménageur: grand paris aménagement
urbaniste: atelier 2/3/4/
maîtrise d’œuvre : hub architectes mandataire (t.dantec, r.masson, c.verryser), avec Valéro Gadan architectes (bâtiments 1 et 2), Laurence Jouhaud (paysagiste), Kerexpert (fluides/thermique), Terao (environnement), 2R Ingénierie (structure), Casso et associés (sécurité incendie), Btp consultants (bureau de contrôle)
surface/coût travaux : 1267 m2 shab / 1373 m2 sdp / 2,09 M € ht
performance environnementale : nf habitat hqe, E3C1 du label E+C-
statut : appel à manifestation d'intérêt lauréat 2018, mission complète, livré 2025
crédits: philippe billard
Le projet consiste en un bâtiment en r+4 participant de l'épannelage général de l'îlot marqué par une gradation des hauteurs bâties. Les volumétries se répondent et organisent ensemble une transition d'échelle manifestant de la mixité des types d'habitat qui caractérise chaque parcelle du plan d'aménagement.
Le bâtiment, organisé selon un plan centré, est structuré autour d'une rotonde couverte qui permet la desserte de 4 logements par niveau. A chaque angle, un espace continu de près de 50m² réunissant séjour, cuisine et loggia est projeté vers les échappées visuelles les plus lointaines.
Au centre du bâtiment, un large puits de lumière favorise l'éclairage et la ventilation naturelle des circulations tout en mettant en scène la vie en commun. Par la mise en œuvre d'un dispositif de sécurité d'effet équivalent (logements accessibles par leurs balcons), cette dérogation à la règlementation incendie fait l'objet d'un permis d'innover.










programme : 41 logements en accession brs
lieu : lot f, zac chapelle-charbon, paris 18e
maîtrise d'ouvrage : élogie-siemp, foncière de la ville de Paris
aménageur: paris & métropole aménagement
urbaniste: base+h2o
maîtrise d’œuvre : hub architectes (t.dantec, r.masson, c.verryser) + nicolas lombardi architecture + bianchimajer avec zefco, sylva conseil, espace temps, éco+construire, art acoustique
surface/coût travaux : 3410 m² sdp / 10.2 M € ht
performance environnementale : Effinergie 2020, Certification BEE, Label BBCA v4, Bâtiment biosourcé niveau 3, Ic construction seuil 2028, Bbio-20%, Cep, nr -20%
statut : concours lauréat 2022, mission complète, études en cours
crédits perspectives / illustration : jeudi.wang / hippolyte jacquet
Le projet urbain de Chapelle-Charbon est un jalon majeur de la transformation de Paris Nord-Est. Le lot F formera la proue du nouvel ensemble à l’entrée du parc récemment aménagé. La volumétrie, volontairement composite, prolongera les gabarits avoisinants tout en affirmant une nouvelle figure d’angle à rue. Côté cœur d’ilot, la composition préservera en creux un exceptionnel jardin (30% de l’emprise).
Le bâtiment abritera 41 logements en accession à la propriété dans le cadre du Bail Réel Solidaire. Bien que compacts, les appartements bénéficieront tous de réelles qualités spatiales et fonctionnelles. Une grande diversité de configurations spatiales et de typologies sera autorisée par la structure poteaux/poutres répétitive et organisée autour d’un noyau central.
La construction valorisera l’usage de matériaux biosourcés (en structure, façades et isolation) tout en assumant la fonction de signal urbain en R+10. L’ensemble démontrera que qualités d’insertions urbaine et paysagère, confort de vie et sobriété carbone sont possibles, et souhaitables, dans un contexte métropolitain pourtant très dense.









programme : 15 logements en accession brs
lieu : rue louis auroux
maîtrise d'ouvrage : coopimmo
aménageur: marne-au-bois spl
maîtrise d’œuvre : hub architectes (t.dantec, r.masson, c.verryser) + camille salomon architecte + valentin cordebar architecte + urbanescence avec legnus, kerexpert, ds2e
surface/coût travaux : 1075 m² sdp / 1020 m² shab / 2.4 M € ht
performance environnementale : Ic construction seuil 2025, Bâtiment biosourcé niveau 1
statut : concours lauréat 2024, mission complète, études en cours
crédits perspective : lotoarchilab
Le projet de construction de 15 logements en accession brs s’inscrit dans une dynamique territoriale de renouvellement et d’intensification autour de la gare du Val de Fontenay. Le projet s’inscrit également dans un paysage pavillonnaire diffus encore largement végétalisé. A la fois très bien connecté et encore préservé de la haute densité.
La répartition des masses bâties sur le terrain, organisée en deux grandes maisonnées séparées par une succession de jardins, est manifeste d’une densification douce, adaptée à l’échelle du tissu urbain et aux qualités résidentielles du quartier.
La composition des volumes est simple et essentielle tout en offrant une grande diversité des configurations spatiales intérieures (duplex inversés, penthouse,…). Les logements, tous traversants, bénéficieront de vues dégagées et variées, d’un bel ensoleillement, d’un rapport intime au paysage et à une nature largement préservée (50% d’emprise construite pour 40% de végétalisation et 30% de pleine terre).









programme : 124 logements en accession
lieu : lot 7a, zac du triangle de l'échat, créteil
maîtrise d'ouvrage : adastra promotion
aménageur: grand paris aménagement
urbaniste: architecture studio
maîtrise d’œuvre : hub architectes (t.dantec, r.masson, c.verryser) avec sibat, art acoustique, symbiosis
surface/coût travaux : 8100 m² sdp / nc
performance environnementale : Ic construction seuil 2025, bâtiment biosourcé niveau 2, label Biodiversity, phytoépuration des eaux grises, certification NF habitat 7*
statut : concours lauréat 2023, études en cours
crédits perspectives : ethan declerck
Au croisement de grandes infrastructures de transport (A86 et ligne 8 du métro) et à proximité immédiate du pôle hospitalier Henri Mondor, le site du triangle de l’Echat a une vocation résolument métropolitaine. L’arrivée prochaine de la ligne 15 à quelques pas permettra d’en renforcer l’attractivité et d’en révéler définitivement le potentiel.
Le lot 7a compose une nouvelle façade urbaine rythmée par trois bâtiments juxtaposés. Cette fragmentation distributive, structurelle, volumétrique et typologique est traduite dans le traitement architectural et met en valeur la diversité des configurations intérieures. A l’instar d’un cadavre exquis, les bâtiments dialoguent finement tout en affirmant leurs qualités propres. Rappelant l'échelle, l'unicité et la diversité d'une rue traditionnelle.
Une multitude de petits espaces partagés favorise l'altérité et l’insertion d’une nature compensatrice. Le jardin linéaire met en scène la phytoépuration des eaux grises in situ. Les cultures potagères en toiture ponctuent une «rue haute» liant les cages entre elles. Le solarium offre un refuge en hauteur et un exceptionnel point de vue sur la métropole.







programme : 28 logements en accession brs
lieu : lot E2, zac du fort d'aubervilliers
maîtrise d'ouvrage : i3f
aménageur: grand paris aménagement
urbaniste: CoBe
maîtrise d’œuvre : hub architectes (t.dantec, r.masson, c.verryser) + échelle office avec sibat
surface/coût travaux : 1886 m2 shab / 2057 m2 sdp / 4,6 M € ht
performance environnementale : seuil 2028 de la RE 2020, label biosourcé niveau 3
statut : concours lauréat 2024, mission complète, études en cours
crédits illustration / maquette : alexis gauchet / plb
Le lot E2 traduit les qualités du plan d’aménagement par une volumétrie composite qui accompagne l’épannelage général des lots voisins. La tripartition du volume bâti adresse des situations urbaines spécifiques: au Nord, la figure urbaine de l’angle manifestée par une émergence en r+8, au centre la grande percée visuelle Est/Ouest au travers du porche et des logements, au Sud la façade « panoramique », projetée vers le paysage ouvert du Stade. Cette composition en trois volumes adjacents donne à lire une échelle domestique à l’ensemble.
De grandes perspectives intérieures magnifient la dimension diagonale des appartements. Cette disposition met en scène la perception d’un espace séquencé le plus grand possible. Elle permet d’organiser des séjours pouvant systématiquement dissocier l’espace du salon d’une grande cuisine dînatoire.
Les ouvertures sont généreuses (22% shab) et bénéficient de belles prestations (MEX bois, persiennes bois, précadres béton préfabriqué). Le détail est récurrent mais les proportions varient selon les orientations (panoramiques au Nord, toute hauteur et scandées côtés Est et Ouest, en renfoncement côté Sud). La lumière et les vues sont privilégiées et assumées comme la qualité principale des logements.












programme: rénovation d'un appartement
lieu: courbevoie
maîtrise d'ouvrage: privée
maîtrise d’œuvre: hub architectes (t.dantec, r.masson)
surface/coût travaux: 75 m² / 70 k € ht
statut: commande directe, mission complète, livraison 2024
crédits: philippe billard
Dans ce T3 traversant réaménagé, l’entrée, la cuisine, la salle à manger et le salon sont décloisonnés pour former un grand séjour fluide et lumineux. Des alcôves discrètes structurent l’espace : coin bureau, cuisine, petit genkan d’entrée. Un grand rideau permet d’en moduler l’intimité selon les usages et les moments.
Autour d’une cloison centrale partiellement conservée et perforée d’un oculus intérieur, plusieurs meubles anciens récupérés trouvent naturellement leur place. L’ensemble compose une juxtaposition ordonnée et libre, à la fois sophistiquée et chaleureuse. Le projet compose une mise en scène très personnelle, reflet du quotidien et de la sensibilité des habitants.




saumur - études en cours







programme : hôtel 4* (120 chambres), hôtel (140 chambres), bureaux, restaurants, parking, aménagements extérieurs
lieu : lot CN1a, quartier central, aerolians, tremblay-en-france (93)
maîtrise d'ouvrage : IPE
aménageur: grand paris aménagement
maîtrise d’œuvre : hub architectes (t.dantec, r.masson, c.verryser)
surface/coût travaux : 11000 m² SU / NC
statut : concours 2023
crédits perspectives : jeudi.wang
Dans les plaines agricoles, les bosquets forment de petits îlots de densité végétale régulièrement espacés, permettant à la faune et à la flore de trouver un refuge ponctuel. CN1a sera construit autour d'un bosquet de plus de 2000m² apportant conforts visuel et climatique aux usagers, permettant d'absorber la densité construite et formant un jalon écologique supplémentaire entre les forêts de l'Oise et de Fontainebleau.
Autour du bosquet, les programmes se déploient en une couronne bâtie d'épaisseur continue 17m permettant d'accueillir indifféremment hôtels, bureaux et stationnements. Le pas d'étage est porté invariablement à 3m20. Cette matrice ainsi appliquée à l'ensemble des programmes est pensée pour accompagner la réversibilité des usages.
La cohérence de la figure urbaine est consolidée par l'unicité de l'écriture architecturale. Le principe constructif est systématisé aux trois bâtiments (poteaux-poutres en béton armé, dalles en bois-béton, remplissages de façades en panneaux à ossature bois-bottes de paille, bardage bois ventilé). L'expression sérielle, réduite à quelques éléments élémentaires, voire rudimentaires, tient tout autant au principe constructif adopté (large préfabrication) qu'à la recherche d'une composition urbaine «classique», sobre et élégante.









programme: rénovation d'un appartement
lieu: paris 19e
maîtrise d'ouvrage: privée
maîtrise d’œuvre: hub architectes (t.dantec, r.masson)
surface/coût travaux: 67 m² / 60 k € ht
statut: commande directe, mission complète, livraison 2023
crédits: philippe billard
Place des fêtes à Paris, un appartement T3 est à rénover. La distribution générale est revue. L'interversion cuisine/chambre permet de tourner toutes les pièces vers un grand séjour. Toutes les surfaces de dégagement sont supprimées. L'espace est optimisé, libéré et visuellement agrandi.
Rangements de l'entrée et cuisine sont intégrés dans un grand ensemble menuisé blanc effaçant sa présence. Les différents usages sont discrètement structurés autour d'un voile porteur dont la matérialité est révélée. Il est prolongé par un grand rideau en feutre permettant d'intimiser ponctuellement le séjour en alcôve. L'espace est flexible.











programme : reconversion du bâtiment cimendef en conservatoire à rayonnement régional
lieu : saint-paul de la réunion
maîtrise d'ouvrage : région réunion
maîtrise d’œuvre : hub architectes (t.dantec, r.masson, f. mayet) + marin+trottin/périphériques architectes, avec egis océan indien, alternative acoustique, atelier franck tallon
surface/coût travaux : 2172 m2 sdp / 3.77 M € ht
statut : marché négocié lauréat 2016, mission complète, livraison 2021
crédits : charly chapelet
Le bâtiment Cimendef, construit pour héberger la médiathèque de Saint-Paul, fut réaffacté dès sa livraison en 2015. Cimendef accueillera finalement un conservatoire régional, un pôle des musiques actuelles, un centre de lecture. A l'image d'un palimpseste, il s'agira de réinvestir entièrement les espaces intérieurs d'un bâtiment pourtant neuf.
De nouvelles grappes de salles investissent les plateaux libres tout en libérant un vaste foyer. Conçu comme un espace fluide, le foyer permettra la bonne circulation de l'air, de la lumière et des personnes. Angles arrondis, façades largement vitrées, les surfaces sont lisses et garantissent la conservation des qualités de perméabilité du bâtiment existant.
Le réemploi est la règle. Les équipements techniques réutilisables sont intégrés aux nouveaux systèmes. Les toiles des faux-plafonds existants sont déposées, découpées et réassemblées dans les nouveaux espaces à l'image d'un grand puzzle. Les contraintes acoustiques sont intégrées avec une grande préoccupation d'économie de moyens et de respect des qualités de l'enveloppe existante.









programme : 19 logements collectifs + 24 logements intermédiaires
lieu : macro-lot a, zac jules verne, rennes
maîtrise d'ouvrage : batiarmor + lamotte
aménageur : territoires
maîtrise d’œuvre : hub architectes (t.dantec, r.masson, s.hamid) + nicolas lombardi architecture, avec eoc, innovation fluides, alternative acoustique, cabinet lemonnier, étamine
surface/coût travaux : 2930 m2 sdp / 4,4 M € ht
performance environnementale : E3C1 du label E+C-
statut : concours 2019
L'ancien terrain des compagnons est un site à l'articulation entre tissu pavillonnaire (r+1), immeubles de grande hauteur (r+18) et fourche des voies sncf. La morphologie urbaine (épannelage, typologie et orientation des bâtiments) favorisera une transition d'échelle entre ces situations urbaines de nature très variable.
En proue, une émergence prismatique compacte ménage des logements doublement orientés et organisés autour de loggias d'angle. En cœur d’îlot, une fine lame fragmentée compose des logements traversants distribués par de petits porches extérieurs. Formes urbaines et qualités d'habitat sont liées.
Les constructions s'inscrivent dans une cohérence bâtie à l’échelle du site. Les façades sont réalisées en béton brut, dont le sablage fait apparaître une fine gradation de granulométrie. Les menuiseries sont en bois. La minéralité des façades et le rythme régulier des ouvertures rappellent ainsi l'architecture des bâtiments conservés et réhabilités.














programme : rénovation d'un appartement
lieu : paris 19e
maîtrise d'ouvrage : gilles et arnaud groussard
maîtrise d’œuvre : hub architectes (t.dantec, r.masson, e.danton)
surface/coût travaux : 100 m2 sdp / 130 k € ht
statut : commande directe, mission complète, livraison 2019
crédits : schnepp renou
Place du Colonel Fabien à Paris, un appartement très étiré en plan est à rénover. D'une configuration toute en longueur développant une surface de couloir disproportionnée (20%), le nouvel aménagement devra en corriger l’effet tunnel. La distribution est alors revue.
Le déplacement de la chambre principale vers l'actuelle salle à manger permet l'ouverture d'un vaste séjour doublement orienté. De part et d'autre, les pièces les plus intimes. L'étendue de l'appartement est révélée et les perspectives visuelles magnifiées.
Un nouvel ensemble menuisé intégrant alcôve d'entrée, dressing, équipements de cuisine, bibliothèque égalise les irrégularités de plan. Cette langue de rangements structure le continuum du nouvel espace central tandis que l’îlot de cuisine et la cheminée conservée en séquencent les usages.








programme : rénovation du siège du lne
lieu : paris 15e
maîtrise d'ouvrage : laboratoire national de métrologie et d'essais
maîtrise d’œuvre : hub architectes mandataire (t.dantec, r.masson, m.notter), avec lydia elhadad muséographe, bethermique
surface/coût travaux : 1420 m² sdp / 1.3 M € ht
statut : appel d'offre lauréat 2018, étude de définition
L’immeuble du siège du LNE, construit entre 1940 et 1962 dans un style art déco, est prestigieux. Le cadre des transformations tient du vieillissement des locaux, d’un besoin accru de surfaces tertiaires et d’une politique de renouvellement de l’image de l’entreprise. Les interventions valorisent donc le langage art-déco tout en le réinterprétant grâce à des équipements contemporains, adaptés aux usages actuels.
Les espaces transformés sont protéiformes, mais ils favoriseront tous les échanges entre collaborateurs. Les nouveaux bureaux sont aménagés autour de tablées collectives (exit les bureaux individuels). Le grand escalier est augmenté de fonctions annexes de rencontres (bar en lien avec la cafétéria; nouveau desk d'accueil). L'ancienne bibliothèque est requalifiée en plateforme collaborative événementielle.
Circulaire, ouverte sur une triple hauteur, couronnée d'un dôme de verre, la rotonde de l'ancienne bibliothèque est un espace déambulatoire unique, capable de porter l'image d’une entreprise en mouvement. Une scénographie inspirée des mobilités théâtrales permet d'accueillir des usages quotidiens comme exceptionnels tout en proposant un parcours interprétatif des savoir-faire du LNE.








programme : requalification des espaces (privés et ouverts au public) du centre commercial joli mai et des voiries attenantes
lieu : meudon-la-forêt
maîtrise d'ouvrage : ville de meudon
maîtrise d’œuvre : hub architectes mandataire (t.dantec, r.masson, e.danton), avec bérénice, bianchimajer, atelier h.audibert
surface/coût travaux : 20 917 m2 sdp / nc
statut : appel d'offre lauréat 2019, études en cours
Construit en 1968 sur un format double de pied d'immeuble et de galerie, Joli Mai est un petit centre commercial urbain, situé au cœur d'un quartier d'habitations dense et animé. Mais entre redéfinition du commerce physique et irruption de la consommation numérique, ce type de lieux marchands fait face à des enjeux de repositionnement et d'adaptation.
L'attrition volontaire de l'activité commerciale en son cœur permettra de redéployer efficacement les espaces de Joli Mai. Accès facilités, circulations agréables, aménités autres que commerciales,... le traitement qualitatif des espaces est une nécessité pour continuer à exister. Les zones peu propices à l'intensité commerciale évolueront vers une programmation de services liés aux logements.
Les espaces ouverts de Joli Mai ainsi reprogrammés seront traités comme des jardins de poche aux qualités d'usage spécifiques. Les espaces ne seront plus simplement ornementaux. A l'échelle urbaine, ils complèteront la chaîne d'espaces publics qui mettra en cohérence les grandes compositions de Pouillon au Nord et les récents aménagements de Meudon-La-Forêt au Sud.








programme : rénovation d'un appartement
lieu : paris 17e
maîtrise d'ouvrage : marie louail et aurélien godard
maîtrise d’œuvre : hub architectes (t.dantec, r.masson, a.requillart)
surface/coût travaux : 70 m2 shab / 80 k € ht
statut : commande directe, mission complète, livraison 2019
crédits : schnepp renou
En plein cœur du quartier des Batignolles à Paris, un appartement traversant entre rue animée et cour arborée est à rénover pour créer une chambre supplémentaire. Le projet consiste en une interversion de la distribution en tirant parti des équipements en place. Le séjour est scindé en deux chambres et la suite bureau/dressing/chambre est décloisonnée pour le nouveau salon.
La partition des espaces est rééquilibrée. La reconfiguration des pièces humides donne à voir la plus grande dimension de l'appartement par l'ouverture de longues perspectives intérieures. La morphologie de l'immeuble, qui se développe en profondeur, est révélée et l'espace visuellement agrandi.
La construction d'une épine longitudinale maximise les rangements tant dans l'espace de l'entrée que dans la cuisine. C'est le couteau suisse de l'appartement. A cette ligne sourde répondent les courbes enveloppantes de la buanderie et de la cuisine qui fabriquent des petites alcôves pittoresques.








programme : maison individuelle
lieu : arradon
maîtrise d'ouvrage : claire david et mathieu dantec
maîtrise d’œuvre : hub architectes (t.dantec, r.masson, p.pascaud)
surface/coût travaux : 200 m² sdp / 300 k € ht
statut : commande directe, esq>dce, livraison 2021
crédits : pascal léopold
En extension d’un petit hameau du bord de la côte, la construction d’une maison de lotissement pour un couple et ses enfants croise les enjeux parfois opposés de la qualité de vie périurbaine et d’une densité nécessaire à la maîtrise de la consommation du territoire.
La maison est construite autour de son jardin et non l’inverse. La création d’un volume allongé et positionné en mitoyenneté côté Est permet d’ouvrir un jardin latéral côté Ouest. Le vide paysager n’est pas résiduel mais se retourne généreusement jusque la rue créant une respiration pour les parcelles arrières.
La volumétrie emprunte aux longères traditionnelles leur gabarit simple, compact et orienté. A l’intérieur, l’aménagement est rigoureusement rythmé selon les travées structurelles. La distribution donne à voir cette belle dimension allongée par des perspectives en longueur ménageant de grands cadrages vers le paysage côtier.








programme : 20 logements collectifs
lieu : Besançon
maîtrise d'ouvrage : sedD et SAIEMB logement
maîtrise d’œuvre : hub architectes mandataire (t.dantec, r.masson), avec gmgb
surface/coût travaux : 1768 m2 sdp / 2,2 M € ht
performance environnementale : rt 2012-20%
statut : appel à idées 2017
Quelle alternative aux pavillons pour limiter l'étalement urbain? Le village vertical a pour ambition de réinventer l’habitat collectif, en intégrant l’échelle et les qualités de l’habitat individuel dans une structure dense et flexible.
La mise à distance de chacun des logements ouvre à des espaces intermédiaires en plus. Conçus comme des espaces tampons bioclimatiques, les intervalles entre logements éloignent et réunissent à la fois. En confort d’hiver, la compacité de l’enveloppe thermique minimise les déperditions. En confort d’été, la fragmentation du bâti favorise la ventilation naturelle abondante. La densité est aérée.
Du plus public au plus intime, ces interstices hiérarchisent l'intensité de la vie en commun: un large palier, éclairé naturellement et ouvert sur toute la hauteur; une loggia d'entrée offrant une pièce en plus pour le logement; un balcon filant prolongeant les espaces du séjour. Ces intervalles graduées entre sphères publique et privée ouvrent à de nouvelles qualités pour le logement collectif.









programme : planification urbaine
lieu : donauworth *de
maîtrise d'ouvrage : ville de donauworth
maîtrise d’œuvre : hub architectes (t.dantec, r.masson, r.lombard) + v.cordebar architecte, avec bianchimajer, arga16
surface/coût travaux : 32 ha / nc
statut : lauréat europan 12 puis concours international restreint, 3 ème prix
Entre Nuremberg, Munich et Stuttgart, lovée dans une vallée du Danube, Donauworth est une ville qui offre un cadre de vie amène. L'ancienne caserne Alfred Delp, rétrocédée à la municipalité, ouvre 32ha de friches à un redéploiement urbain de grande ampleur. En cours de démolition, les infrastructures militaires vont disparaître.
Le nouvel aménagement s'inscrira dans son territoire par la prolongation des systèmes paysagers environnants. Une alternance de bandes «pleines», les coteaux boisés habités, et «vides», les prairies ouvertes, structure le nouveau quartier. La surface de lisière entre ville et campagne est démultipliée. La vue vers le lointain pour les logements supporte alors la constitution d'un tissu urbain densifié.
Cette organisation propose de n'urbaniser "que" 50% de la surface de la parcelle. En s'inscrivent dans la topographie existante, la répartition des bandes exploite les trois terrasses principales qui caractérisent le site. A chaque bande imperméable urbanisée correspond en aval une bande perméable paysagère conçue comme une surface tampon permettant la rétention et l'infiltration des eaux de pluie.




programme : centre culturel et visitor center de la ville de suncheon
lieu : suncheon *kr
maîtrise d'ouvrage : commune de suncheon
maîtrise d’œuvre : hub architectes (t.dantec, r.masson, s.mulas)
surface/coût travaux : 2300 m2 sdp / 12,1 M € ht
statut : concours international ouvert 2016
crédits : virginlemon
Au sud de la péninsule coréenne, Suncheon s'est développée au fond d'une baie exceptionnelle. La ville tente aujourd'hui de tirer parti de ce cadre pour dépasser son héritage industriel. Nous concevons le visitor center comme le manifeste de cette relation privilégiée entre ville et nature. Le plan carré comme représentation de la terre, le cercle du patio comme évocation du ciel, le bâtiment cultive la symbolique.
Sous une toiture cintrée évocatrice de l'architecture traditionnelle, les salles s’enroulent autour d'un patio. Aux angles du bâtiment, la hauteur est magnifiée pour les espaces emblématiques. Au centre, la hauteur est abaissée permettant de cadrer depuis le hall circulaire les cimes alentours. Telle un impluvium, la toiture recueille les eaux de pluie et dessine un jardin aquatique à l'image de la baie.
La toiture est constituée d'un réseau de câbles ancrés dans l'épais voile périphérique et solidarisés entre eux par un anneau suspendu au droit du patio. Les dalles de couverture sont en béton cellulaire fixées directement sur les câbles. Une sur-toiture en béton protégera l'étanchéité. Formant un velum paraboloïde dissymétrique, le dispositif constitue un défi technique à la mesure du nouvel équipement.









programme : atelier d'art floral japonais
lieu : paris 10e
maîtrise d'ouvrage : ikébanart sas
maîtrise d’œuvre : hub architectes (t.dantec, r.masson, s.ghorbanalinejad)
surface/coût travaux : 58 m2 sdp / 55 k € ht
statut : commande directe, mission complète, livraison 2016
crédits : alberto stievanin
L'ikébana est un art floral japonais qui existe depuis plus de treize siècles. A l'inverse de la tradition de composition occidentale accentuant la quantité de fleurs et de couleurs, les règles de l'ikébana mettent en scène l'harmonie du tryptique terre, ciel, humanité. Le nouvel espace Ikébanart traduira cette philosophie.
Pour digérer la configuration irrégulière de l'espace, un nouveau niveau est créé à 90cm de hauteur. Le noir du mdf teinté déplace alors l’horizon, le visiteur s’en trouve plongé dans un sol artificiel. Selon les aspérités de l'espace, cette grande plinthe prend la forme d'un podium, d'un grand établi ou d'un long banc.
Ce socle libère un ciel blanc à la géométrie pure, support visuel des jardins suspendus de kokédama. Un grand puits de lumière diffuse une lumière laiteuse, diaphane presque abstraite. La division du volume en hauteur transforme ainsi complètement la lecture d'un espace pourtant très fragmenté en plan.








programme : groupe scolaire, gymnase triple, accueil périscolaire, parking
lieu : arzier-le muids *ch
maîtrise d'ouvrage : commune d'arzier le muids
maîtrise d’œuvre : hub architectes mandataire (t.dantec, r.masson, s. mulas), avec chabloz et partenaires, begelec, pierre chuard, ba consulting
surface/coût travaux : 7000 m2 sdp / 21M chf ht
statut : concours international ouvert 2015
crédits : virginlemon
Le gymnase triple et le groupe scolaire sont les deux composantes homologues et complémentaires du projet éducatif pour le nouvel établissement d'Arzier-Le Muids. Plutôt que de classiquement construire deux bâtiments indépendants, nous proposons d’associer ces deux composantes éducatives dans un ensemble cohérent.
Les fonctions sont réunies dans un même bâtiment aux deux ailes rigoureusement symétriques. Les programmes ne sont pas séparés mais juxtaposés, les circulations et les équipements sont mutualisés. Le noyau commun permet un usage de manière indépendante ou reliée. Cette organisation vise à créer un lieu ouvert et flexible même au-delà des horaires scolaires.
Le bâtiment ainsi compacté est construit sur la moitié sud de la parcelle. La partie nord est quant à elle dédiée aux activités de plein air. Les deux polarités sont cadrées par un préau périphérique. Cette grande galerie magnifie la dimension horizontale du nouvel équipement qui, tapi dans le terrain, s'inscrit discrètement dans l'étendue d'un paysage encore largement préservé, rural, serein.







programme : reconversion d'une usine en espace culturel
lieu : bologne *it
maîtrise d'ouvrage : nute partecipazioni ltd
maîtrise d’œuvre : hub architectes mandataire (t.dantec, r.masson, m.notter) avec 5+1aa paris
surface/coût travaux : 3500 m2 sdp / nc
statut : concours international ouvert 2015
crédits : virginlemon
Construite par l'architecte italien Pierluigi Cervellati, l’ancienne usine La perla est un palais brutaliste à la gloire de la confection textile. Aujourd'hui tombé en désuétude, le palais se cherche une nouvelle destinée dans la culture. Au cœur d'une commune périphérique de Bologne, nous héritons d’une centralité faible. Quelle infrastructure culturelle ici?
A l'instar des SESC brésiliens, nous proposons un espace de coproduction culturelle où des programmes aussi spécifiques qu'une salle de sport/spectacle, une crèche, une pépinière d'entreprises, un espace d'exposition peuvent s'associer. Nous poursuivons alors le processus d'extension naturelle du complexe par l'accrétion de nouveaux bâtiments spécifiques autour de l'ancien atelier principal.
La surface de l'ancien atelier principal, laissée libre, recréé au centre du dispositif la qualité de l’espace public bolonais et de son exceptionnel réseau d'arcades. Monumentale, cette place centrale couverte de nature publique sert les usages quotidiens comme les usages d'exception. Entre grand vestibule et jardin d’hiver, l’atelier est l’espace commun des programmes agglomérés autour.








programme : bâtiment universitaire, gare et learning center
lieu : helsinki *fi
maîtrise d'ouvrage : aalto university
maîtrise d’œuvre : hub architectes (t.dantec, r.masson, s. le gallo) + nicolas lombardi architecture
surface/coût travaux : 53 000 m2 sdp / nc
statut : concours international ouvert 2012
Construite dès 1949 en proue de l'idyllique péninsule d'Otaniemi, l'université Aalto est conçue dans la lignée des campus verts d'Olmsted. Mais aujourd'hui l’université est lancée dans la compétition des grands clusters mondiaux. Nouvelle ligne de métro et densification signent la (ré)intégration du campus Aalto dans la métropole. La stratégie urbaine mariera les qualités du village académique d'Olmsted et l'hyper-connectivité contemporaine.
Plutôt que de massivement densifier autour de la future gare, nous répartissons sur la presqu'île les trois nouvelles composantes du campus: école d'architecture, gare et learning center. Ces épicentres d'intensités différenciées s'adressent respectivement aux échelles du campus, de la métropole et du monde. Ces fragments d'architecture disséminés dans le paysage ne trahissent pas la structure urbaine ouverte d'Aalto.
Le learning center est construit comme une île iconique et, qui tel un rocher affleurant de l’eau, devient le lieu privilégié de la contemplation du paysage. La nouvelle école d’arts est conçue comme une enfilade de 17 bâtiments spécifiques assemblés comme une petite ville. La nouvelle gare est travaillée comme un réseau de tunnels habités connectant efficacement les écoles et ouverts par de larges douves végétalisées.







programme : logements, bureaux et commerces
lieu : barcelone *es
maîtrise d'ouvrage : future arquitecturas
maîtrise d’œuvre : hub architectes (t.dantec, r.masson)
surface/coût travaux : 140 000 m² sdp / nc
statut : appel à idées 2012, 2e prix
crédits : virginlemon
Le plan de Cerdà a définitivement conféré à Barcelone sa forme et son identité particulières. Les îlots de Cerdà, bien qu'ils aient connu une densification importante, demeurent la forme paradigmatique d'un tissu qui supporte encore un centre vivant, habité et plurifonctionnel. Avec Cerdà, le modèle de la ville traditionnelle a peut-être vécu plus facilement que dans d'autres villes européennes.
Cerdà3 est hyper-contextuel. Sa morphologie et son image résultent strictement d'une augmentation des qualités « déjà-là » des îlots barcelonais. La largeur maximale de l’îlot est reportée à la verticale. Les chanfreins face aux places d'angle prennent en hauteur une envergure exacerbée. La répartition des programmes par orientation des façades conforte la mixité des fonctions à tous les niveaux.
Avec Gaudi et Nouvel, Barcelone possède deux émergences iconiques symbolisant leurs époques respectives. La proposition se concentre alors sur l'îlot de Cerdà en sa forme maximisée sans entrer dans la course à l’image. Cerdà3 est un hybride entre l’îlot et la tour, c'est le Rockefeller center de Barcelone.




















programme : 25 logements locatifs sociaux + crèche de 68 berceaux
lieu : lot e2, secteur d'aménagement paul meurice, paris 20e
maîtrise d'ouvrage : élogie-siemp
aménageur: paris & métropole aménagement
maîtrise d’œuvre : hub architectes (t.dantec, r.masson, e.danton) + nicolas lombardi architecture, avec bianchimajer, eoc, innovation fluides, transsolar, alternative acoustique, atec
surface/coût travaux : 2739 m² sdp / 6.55 M € ht
performance environnementale : plan climat ville de paris, rt 2012 - 20%, E3C2 du label E+C-
statut : concours lauréat 2018, mission complète, livré en 2024
crédits photos / illustration : guillaume amat / martin boullay
Le lot E2 est le point final de l’opération de refonte de la porte des Lilas qui opère une transition d’échelle entre les imposantes masses construites à front de périphérique et le tissu délicat des villas faubouriennes. Forme urbaine, matérialité des bâtiments déjà édifiés, les réminiscences de la ceinture HBM toute proche sont implicites. Nous poursuivons la relecture de cet héritage architectural dans la perspective d’y intégrer les exigences environnementales E3C2.
L’organisation spatiale tire parti d'une morphologie urbaine qui alterne bandes construites et végétales de largeur 12m. Les logements familiaux (T3, T4 et T5) sont ainsi tous traversants avec des chambres orientées au Nord sur jardin et des séjours largement ouverts vers le Sud. En couronnement du bâtiment de cœur d’îlot, la crèche se développe sur les deux derniers niveaux et offre aux enfants un jardin suspendu en toiture.
Le principe structurel d’une ossature poteaux/poutres favorise la superposition des programmes (crèche et logements) tout en ouvrant une organisation flexible et évolutive dans le temps. La matérialité unique du parement brique (en continuité des bâtiments de logements voisins) ainsi que le rythme régulier des ouvertures participent de cette lecture indifférenciée de l’imbrication des programmes.



























programme : complexe commercial, tertiaire et hôtelier
lieu : saint-pierre de la réunion
maîtrise d'ouvrage : icade promotion pour la sccv casabona
maîtrise d’œuvre : hub architectes mandataire (t.dantec, r.masson, m.notter, r.lombard) + dpv avec cotel, fedt, site, zone-up, alternative
surface/coût travaux : 21 138 m2 sdp / 31.6 M € ht
statut : commande directe, mission complète, livraison 2022
crédits : schnepp renou + charly chapelet + antoine seguin
Au carrefour des axes structurants de l'île de la Réunion, Casabona est un quartier en plein développement. En entrée de Saint-Pierre, le projet de complexe commercial, tertiaire et hôtelier est une coproduction dont l'ambition est de former un nouvel épicentre d'activités pour le sud de l'île. Ni simplement centre commercial, ni simplement centre tertiaire, le projet juxtapose les fonctions.
3 espaces commerciaux archétypaux structurent en creux les aménagements. La galerie longeant le jardin, le passage couvert cadrant la mer et la petite place très urbaine forment ensemble un grand espace ouvert de nature publique qui prolonge l'environnement proche de la ville et/ou qui ouvre au grand paysage.
La forte densité du programme implique une organisation spatiale originale. En profitant de la déclivité du terrain, le parking de plus de 500 places, largement ventilé, est logé en infrastructure. Exit le "no car, no business" imposant la prédominance visuelle du parking. Ici ce sont les aménagements paysagers qui participent d'une image qualitative pour l'entrée de ville de Saint-Pierre.


























programme : 20 logements collectifs, mise en application du permis d'innover
lieu : lot a4b, zac canal europe, évry-courcouronnes
maîtrise d'ouvrage : nexity
aménageur: grand paris aménagement
urbaniste: atelier 2/3/4/
maîtrise d’œuvre : hub architectes mandataire (t.dantec, r.masson, c.verryser), avec Valéro Gadan architectes (bâtiments 1 et 2), Laurence Jouhaud (paysagiste), Kerexpert (fluides/thermique), Terao (environnement), 2R Ingénierie (structure), Casso et associés (sécurité incendie), Btp consultants (bureau de contrôle)
surface/coût travaux : 1267 m2 shab / 1373 m2 sdp / 2,09 M € ht
performance environnementale : nf habitat hqe, E3C1 du label E+C-
statut : appel à manifestation d'intérêt lauréat 2018, mission complète, livré 2025
crédits: philippe billard
Le projet consiste en un bâtiment en r+4 participant de l'épannelage général de l'îlot marqué par une gradation des hauteurs bâties. Les volumétries se répondent et organisent ensemble une transition d'échelle manifestant de la mixité des types d'habitat qui caractérise chaque parcelle du plan d'aménagement.
Le bâtiment, organisé selon un plan centré, est structuré autour d'une rotonde couverte qui permet la desserte de 4 logements par niveau. A chaque angle, un espace continu de près de 50m² réunissant séjour, cuisine et loggia est projeté vers les échappées visuelles les plus lointaines.
Au centre du bâtiment, un large puits de lumière favorise l'éclairage et la ventilation naturelle des circulations tout en mettant en scène la vie en commun. Par la mise en œuvre d'un dispositif de sécurité d'effet équivalent (logements accessibles par leurs balcons), cette dérogation à la règlementation incendie fait l'objet d'un permis d'innover.










programme : 41 logements en accession brs
lieu : lot f, zac chapelle-charbon, paris 18e
maîtrise d'ouvrage : élogie-siemp, foncière de la ville de Paris
aménageur: paris & métropole aménagement
urbaniste: base+h2o
maîtrise d’œuvre : hub architectes (t.dantec, r.masson, c.verryser) + nicolas lombardi architecture + bianchimajer avec zefco, sylva conseil, espace temps, éco+construire, art acoustique
surface/coût travaux : 3410 m² sdp / 10.2 M € ht
performance environnementale : Effinergie 2020, Certification BEE, Label BBCA v4, Bâtiment biosourcé niveau 3, Ic construction seuil 2028, Bbio-20%, Cep, nr -20%
statut : concours lauréat 2022, mission complète, études en cours
crédits perspectives / illustration : jeudi.wang / hippolyte jacquet
Le projet urbain de Chapelle-Charbon est un jalon majeur de la transformation de Paris Nord-Est. Le lot F formera la proue du nouvel ensemble à l’entrée du parc récemment aménagé. La volumétrie, volontairement composite, prolongera les gabarits avoisinants tout en affirmant une nouvelle figure d’angle à rue. Côté cœur d’ilot, la composition préservera en creux un exceptionnel jardin (30% de l’emprise).
Le bâtiment abritera 41 logements en accession à la propriété dans le cadre du Bail Réel Solidaire. Bien que compacts, les appartements bénéficieront tous de réelles qualités spatiales et fonctionnelles. Une grande diversité de configurations spatiales et de typologies sera autorisée par la structure poteaux/poutres répétitive et organisée autour d’un noyau central.
La construction valorisera l’usage de matériaux biosourcés (en structure, façades et isolation) tout en assumant la fonction de signal urbain en R+10. L’ensemble démontrera que qualités d’insertions urbaine et paysagère, confort de vie et sobriété carbone sont possibles, et souhaitables, dans un contexte métropolitain pourtant très dense.









programme : 15 logements en accession brs
lieu : rue louis auroux
maîtrise d'ouvrage : coopimmo
aménageur: marne-au-bois spl
maîtrise d’œuvre : hub architectes (t.dantec, r.masson, c.verryser) + camille salomon architecte + valentin cordebar architecte + urbanescence avec legnus, kerexpert, ds2e
surface/coût travaux : 1075 m² sdp / 1020 m² shab / 2.4 M € ht
performance environnementale : Ic construction seuil 2025, Bâtiment biosourcé niveau 1
statut : concours lauréat 2024, mission complète, études en cours
crédits perspective : lotoarchilab
Le projet de construction de 15 logements en accession brs s’inscrit dans une dynamique territoriale de renouvellement et d’intensification autour de la gare du Val de Fontenay. Le projet s’inscrit également dans un paysage pavillonnaire diffus encore largement végétalisé. A la fois très bien connecté et encore préservé de la haute densité.
La répartition des masses bâties sur le terrain, organisée en deux grandes maisonnées séparées par une succession de jardins, est manifeste d’une densification douce, adaptée à l’échelle du tissu urbain et aux qualités résidentielles du quartier.
La composition des volumes est simple et essentielle tout en offrant une grande diversité des configurations spatiales intérieures (duplex inversés, penthouse,…). Les logements, tous traversants, bénéficieront de vues dégagées et variées, d’un bel ensoleillement, d’un rapport intime au paysage et à une nature largement préservée (50% d’emprise construite pour 40% de végétalisation et 30% de pleine terre).









programme : 124 logements en accession
lieu : lot 7a, zac du triangle de l'échat, créteil
maîtrise d'ouvrage : adastra promotion
aménageur: grand paris aménagement
urbaniste: architecture studio
maîtrise d’œuvre : hub architectes (t.dantec, r.masson, c.verryser) avec sibat, art acoustique, symbiosis
surface/coût travaux : 8100 m² sdp / nc
performance environnementale : Ic construction seuil 2025, bâtiment biosourcé niveau 2, label Biodiversity, phytoépuration des eaux grises, certification NF habitat 7*
statut : concours lauréat 2023, études en cours
crédits perspectives : ethan declerck
Au croisement de grandes infrastructures de transport (A86 et ligne 8 du métro) et à proximité immédiate du pôle hospitalier Henri Mondor, le site du triangle de l’Echat a une vocation résolument métropolitaine. L’arrivée prochaine de la ligne 15 à quelques pas permettra d’en renforcer l’attractivité et d’en révéler définitivement le potentiel.
Le lot 7a compose une nouvelle façade urbaine rythmée par trois bâtiments juxtaposés. Cette fragmentation distributive, structurelle, volumétrique et typologique est traduite dans le traitement architectural et met en valeur la diversité des configurations intérieures. A l’instar d’un cadavre exquis, les bâtiments dialoguent finement tout en affirmant leurs qualités propres. Rappelant l'échelle, l'unicité et la diversité d'une rue traditionnelle.
Une multitude de petits espaces partagés favorise l'altérité et l’insertion d’une nature compensatrice. Le jardin linéaire met en scène la phytoépuration des eaux grises in situ. Les cultures potagères en toiture ponctuent une «rue haute» liant les cages entre elles. Le solarium offre un refuge en hauteur et un exceptionnel point de vue sur la métropole.







programme : 28 logements en accession brs
lieu : lot E2, zac du fort d'aubervilliers
maîtrise d'ouvrage : i3f
aménageur: grand paris aménagement
urbaniste: CoBe
maîtrise d’œuvre : hub architectes (t.dantec, r.masson, c.verryser) + échelle office avec sibat
surface/coût travaux : 1886 m2 shab / 2057 m2 sdp / 4,6 M € ht
performance environnementale : seuil 2028 de la RE 2020, label biosourcé niveau 3
statut : concours lauréat 2024, mission complète, études en cours
crédits illustration / maquette : alexis gauchet / plb
Le lot E2 traduit les qualités du plan d’aménagement par une volumétrie composite qui accompagne l’épannelage général des lots voisins. La tripartition du volume bâti adresse des situations urbaines spécifiques: au Nord, la figure urbaine de l’angle manifestée par une émergence en r+8, au centre la grande percée visuelle Est/Ouest au travers du porche et des logements, au Sud la façade « panoramique », projetée vers le paysage ouvert du Stade. Cette composition en trois volumes adjacents donne à lire une échelle domestique à l’ensemble.
De grandes perspectives intérieures magnifient la dimension diagonale des appartements. Cette disposition met en scène la perception d’un espace séquencé le plus grand possible. Elle permet d’organiser des séjours pouvant systématiquement dissocier l’espace du salon d’une grande cuisine dînatoire.
Les ouvertures sont généreuses (22% shab) et bénéficient de belles prestations (MEX bois, persiennes bois, précadres béton préfabriqué). Le détail est récurrent mais les proportions varient selon les orientations (panoramiques au Nord, toute hauteur et scandées côtés Est et Ouest, en renfoncement côté Sud). La lumière et les vues sont privilégiées et assumées comme la qualité principale des logements.












programme: rénovation d'un appartement
lieu: courbevoie
maîtrise d'ouvrage: privée
maîtrise d’œuvre: hub architectes (t.dantec, r.masson)
surface/coût travaux: 75 m² / 70 k € ht
statut: commande directe, mission complète, livraison 2024
crédits: philippe billard
Dans ce T3 traversant réaménagé, l’entrée, la cuisine, la salle à manger et le salon sont décloisonnés pour former un grand séjour fluide et lumineux. Des alcôves discrètes structurent l’espace : coin bureau, cuisine, petit genkan d’entrée. Un grand rideau permet d’en moduler l’intimité selon les usages et les moments.
Autour d’une cloison centrale partiellement conservée et perforée d’un oculus intérieur, plusieurs meubles anciens récupérés trouvent naturellement leur place. L’ensemble compose une juxtaposition ordonnée et libre, à la fois sophistiquée et chaleureuse. Le projet compose une mise en scène très personnelle, reflet du quotidien et de la sensibilité des habitants.




saumur - études en cours







programme : hôtel 4* (120 chambres), hôtel (140 chambres), bureaux, restaurants, parking, aménagements extérieurs
lieu : lot CN1a, quartier central, aerolians, tremblay-en-france (93)
maîtrise d'ouvrage : IPE
aménageur: grand paris aménagement
maîtrise d’œuvre : hub architectes (t.dantec, r.masson, c.verryser)
surface/coût travaux : 11000 m² SU / NC
statut : concours 2023
crédits perspectives : jeudi.wang
Dans les plaines agricoles, les bosquets forment de petits îlots de densité végétale régulièrement espacés, permettant à la faune et à la flore de trouver un refuge ponctuel. CN1a sera construit autour d'un bosquet de plus de 2000m² apportant conforts visuel et climatique aux usagers, permettant d'absorber la densité construite et formant un jalon écologique supplémentaire entre les forêts de l'Oise et de Fontainebleau.
Autour du bosquet, les programmes se déploient en une couronne bâtie d'épaisseur continue 17m permettant d'accueillir indifféremment hôtels, bureaux et stationnements. Le pas d'étage est porté invariablement à 3m20. Cette matrice ainsi appliquée à l'ensemble des programmes est pensée pour accompagner la réversibilité des usages.
La cohérence de la figure urbaine est consolidée par l'unicité de l'écriture architecturale. Le principe constructif est systématisé aux trois bâtiments (poteaux-poutres en béton armé, dalles en bois-béton, remplissages de façades en panneaux à ossature bois-bottes de paille, bardage bois ventilé). L'expression sérielle, réduite à quelques éléments élémentaires, voire rudimentaires, tient tout autant au principe constructif adopté (large préfabrication) qu'à la recherche d'une composition urbaine «classique», sobre et élégante.









programme: rénovation d'un appartement
lieu: paris 19e
maîtrise d'ouvrage: privée
maîtrise d’œuvre: hub architectes (t.dantec, r.masson)
surface/coût travaux: 67 m² / 60 k € ht
statut: commande directe, mission complète, livraison 2023
crédits: philippe billard
Place des fêtes à Paris, un appartement T3 est à rénover. La distribution générale est revue. L'interversion cuisine/chambre permet de tourner toutes les pièces vers un grand séjour. Toutes les surfaces de dégagement sont supprimées. L'espace est optimisé, libéré et visuellement agrandi.
Rangements de l'entrée et cuisine sont intégrés dans un grand ensemble menuisé blanc effaçant sa présence. Les différents usages sont discrètement structurés autour d'un voile porteur dont la matérialité est révélée. Il est prolongé par un grand rideau en feutre permettant d'intimiser ponctuellement le séjour en alcôve. L'espace est flexible.











programme : reconversion du bâtiment cimendef en conservatoire à rayonnement régional
lieu : saint-paul de la réunion
maîtrise d'ouvrage : région réunion
maîtrise d’œuvre : hub architectes (t.dantec, r.masson, f. mayet) + marin+trottin/périphériques architectes, avec egis océan indien, alternative acoustique, atelier franck tallon
surface/coût travaux : 2172 m2 sdp / 3.77 M € ht
statut : marché négocié lauréat 2016, mission complète, livraison 2021
crédits : charly chapelet
Le bâtiment Cimendef, construit pour héberger la médiathèque de Saint-Paul, fut réaffacté dès sa livraison en 2015. Cimendef accueillera finalement un conservatoire régional, un pôle des musiques actuelles, un centre de lecture. A l'image d'un palimpseste, il s'agira de réinvestir entièrement les espaces intérieurs d'un bâtiment pourtant neuf.
De nouvelles grappes de salles investissent les plateaux libres tout en libérant un vaste foyer. Conçu comme un espace fluide, le foyer permettra la bonne circulation de l'air, de la lumière et des personnes. Angles arrondis, façades largement vitrées, les surfaces sont lisses et garantissent la conservation des qualités de perméabilité du bâtiment existant.
Le réemploi est la règle. Les équipements techniques réutilisables sont intégrés aux nouveaux systèmes. Les toiles des faux-plafonds existants sont déposées, découpées et réassemblées dans les nouveaux espaces à l'image d'un grand puzzle. Les contraintes acoustiques sont intégrées avec une grande préoccupation d'économie de moyens et de respect des qualités de l'enveloppe existante.









programme : 19 logements collectifs + 24 logements intermédiaires
lieu : macro-lot a, zac jules verne, rennes
maîtrise d'ouvrage : batiarmor + lamotte
aménageur : territoires
maîtrise d’œuvre : hub architectes (t.dantec, r.masson, s.hamid) + nicolas lombardi architecture, avec eoc, innovation fluides, alternative acoustique, cabinet lemonnier, étamine
surface/coût travaux : 2930 m2 sdp / 4,4 M € ht
performance environnementale : E3C1 du label E+C-
statut : concours 2019
L'ancien terrain des compagnons est un site à l'articulation entre tissu pavillonnaire (r+1), immeubles de grande hauteur (r+18) et fourche des voies sncf. La morphologie urbaine (épannelage, typologie et orientation des bâtiments) favorisera une transition d'échelle entre ces situations urbaines de nature très variable.
En proue, une émergence prismatique compacte ménage des logements doublement orientés et organisés autour de loggias d'angle. En cœur d’îlot, une fine lame fragmentée compose des logements traversants distribués par de petits porches extérieurs. Formes urbaines et qualités d'habitat sont liées.
Les constructions s'inscrivent dans une cohérence bâtie à l’échelle du site. Les façades sont réalisées en béton brut, dont le sablage fait apparaître une fine gradation de granulométrie. Les menuiseries sont en bois. La minéralité des façades et le rythme régulier des ouvertures rappellent ainsi l'architecture des bâtiments conservés et réhabilités.














programme : rénovation d'un appartement
lieu : paris 19e
maîtrise d'ouvrage : gilles et arnaud groussard
maîtrise d’œuvre : hub architectes (t.dantec, r.masson, e.danton)
surface/coût travaux : 100 m2 sdp / 130 k € ht
statut : commande directe, mission complète, livraison 2019
crédits : schnepp renou
Place du Colonel Fabien à Paris, un appartement très étiré en plan est à rénover. D'une configuration toute en longueur développant une surface de couloir disproportionnée (20%), le nouvel aménagement devra en corriger l’effet tunnel. La distribution est alors revue.
Le déplacement de la chambre principale vers l'actuelle salle à manger permet l'ouverture d'un vaste séjour doublement orienté. De part et d'autre, les pièces les plus intimes. L'étendue de l'appartement est révélée et les perspectives visuelles magnifiées.
Un nouvel ensemble menuisé intégrant alcôve d'entrée, dressing, équipements de cuisine, bibliothèque égalise les irrégularités de plan. Cette langue de rangements structure le continuum du nouvel espace central tandis que l’îlot de cuisine et la cheminée conservée en séquencent les usages.








programme : rénovation du siège du lne
lieu : paris 15e
maîtrise d'ouvrage : laboratoire national de métrologie et d'essais
maîtrise d’œuvre : hub architectes mandataire (t.dantec, r.masson, m.notter), avec lydia elhadad muséographe, bethermique
surface/coût travaux : 1420 m² sdp / 1.3 M € ht
statut : appel d'offre lauréat 2018, étude de définition
L’immeuble du siège du LNE, construit entre 1940 et 1962 dans un style art déco, est prestigieux. Le cadre des transformations tient du vieillissement des locaux, d’un besoin accru de surfaces tertiaires et d’une politique de renouvellement de l’image de l’entreprise. Les interventions valorisent donc le langage art-déco tout en le réinterprétant grâce à des équipements contemporains, adaptés aux usages actuels.
Les espaces transformés sont protéiformes, mais ils favoriseront tous les échanges entre collaborateurs. Les nouveaux bureaux sont aménagés autour de tablées collectives (exit les bureaux individuels). Le grand escalier est augmenté de fonctions annexes de rencontres (bar en lien avec la cafétéria; nouveau desk d'accueil). L'ancienne bibliothèque est requalifiée en plateforme collaborative événementielle.
Circulaire, ouverte sur une triple hauteur, couronnée d'un dôme de verre, la rotonde de l'ancienne bibliothèque est un espace déambulatoire unique, capable de porter l'image d’une entreprise en mouvement. Une scénographie inspirée des mobilités théâtrales permet d'accueillir des usages quotidiens comme exceptionnels tout en proposant un parcours interprétatif des savoir-faire du LNE.








programme : requalification des espaces (privés et ouverts au public) du centre commercial joli mai et des voiries attenantes
lieu : meudon-la-forêt
maîtrise d'ouvrage : ville de meudon
maîtrise d’œuvre : hub architectes mandataire (t.dantec, r.masson, e.danton), avec bérénice, bianchimajer, atelier h.audibert
surface/coût travaux : 20 917 m2 sdp / nc
statut : appel d'offre lauréat 2019, études en cours
Construit en 1968 sur un format double de pied d'immeuble et de galerie, Joli Mai est un petit centre commercial urbain, situé au cœur d'un quartier d'habitations dense et animé. Mais entre redéfinition du commerce physique et irruption de la consommation numérique, ce type de lieux marchands fait face à des enjeux de repositionnement et d'adaptation.
L'attrition volontaire de l'activité commerciale en son cœur permettra de redéployer efficacement les espaces de Joli Mai. Accès facilités, circulations agréables, aménités autres que commerciales,... le traitement qualitatif des espaces est une nécessité pour continuer à exister. Les zones peu propices à l'intensité commerciale évolueront vers une programmation de services liés aux logements.
Les espaces ouverts de Joli Mai ainsi reprogrammés seront traités comme des jardins de poche aux qualités d'usage spécifiques. Les espaces ne seront plus simplement ornementaux. A l'échelle urbaine, ils complèteront la chaîne d'espaces publics qui mettra en cohérence les grandes compositions de Pouillon au Nord et les récents aménagements de Meudon-La-Forêt au Sud.








programme : rénovation d'un appartement
lieu : paris 17e
maîtrise d'ouvrage : marie louail et aurélien godard
maîtrise d’œuvre : hub architectes (t.dantec, r.masson, a.requillart)
surface/coût travaux : 70 m2 shab / 80 k € ht
statut : commande directe, mission complète, livraison 2019
crédits : schnepp renou
En plein cœur du quartier des Batignolles à Paris, un appartement traversant entre rue animée et cour arborée est à rénover pour créer une chambre supplémentaire. Le projet consiste en une interversion de la distribution en tirant parti des équipements en place. Le séjour est scindé en deux chambres et la suite bureau/dressing/chambre est décloisonnée pour le nouveau salon.
La partition des espaces est rééquilibrée. La reconfiguration des pièces humides donne à voir la plus grande dimension de l'appartement par l'ouverture de longues perspectives intérieures. La morphologie de l'immeuble, qui se développe en profondeur, est révélée et l'espace visuellement agrandi.
La construction d'une épine longitudinale maximise les rangements tant dans l'espace de l'entrée que dans la cuisine. C'est le couteau suisse de l'appartement. A cette ligne sourde répondent les courbes enveloppantes de la buanderie et de la cuisine qui fabriquent des petites alcôves pittoresques.








programme : maison individuelle
lieu : arradon
maîtrise d'ouvrage : claire david et mathieu dantec
maîtrise d’œuvre : hub architectes (t.dantec, r.masson, p.pascaud)
surface/coût travaux : 200 m² sdp / 300 k € ht
statut : commande directe, esq>dce, livraison 2021
crédits : pascal léopold
En extension d’un petit hameau du bord de la côte, la construction d’une maison de lotissement pour un couple et ses enfants croise les enjeux parfois opposés de la qualité de vie périurbaine et d’une densité nécessaire à la maîtrise de la consommation du territoire.
La maison est construite autour de son jardin et non l’inverse. La création d’un volume allongé et positionné en mitoyenneté côté Est permet d’ouvrir un jardin latéral côté Ouest. Le vide paysager n’est pas résiduel mais se retourne généreusement jusque la rue créant une respiration pour les parcelles arrières.
La volumétrie emprunte aux longères traditionnelles leur gabarit simple, compact et orienté. A l’intérieur, l’aménagement est rigoureusement rythmé selon les travées structurelles. La distribution donne à voir cette belle dimension allongée par des perspectives en longueur ménageant de grands cadrages vers le paysage côtier.








programme : 20 logements collectifs
lieu : Besançon
maîtrise d'ouvrage : sedD et SAIEMB logement
maîtrise d’œuvre : hub architectes mandataire (t.dantec, r.masson), avec gmgb
surface/coût travaux : 1768 m2 sdp / 2,2 M € ht
performance environnementale : rt 2012-20%
statut : appel à idées 2017
Quelle alternative aux pavillons pour limiter l'étalement urbain? Le village vertical a pour ambition de réinventer l’habitat collectif, en intégrant l’échelle et les qualités de l’habitat individuel dans une structure dense et flexible.
La mise à distance de chacun des logements ouvre à des espaces intermédiaires en plus. Conçus comme des espaces tampons bioclimatiques, les intervalles entre logements éloignent et réunissent à la fois. En confort d’hiver, la compacité de l’enveloppe thermique minimise les déperditions. En confort d’été, la fragmentation du bâti favorise la ventilation naturelle abondante. La densité est aérée.
Du plus public au plus intime, ces interstices hiérarchisent l'intensité de la vie en commun: un large palier, éclairé naturellement et ouvert sur toute la hauteur; une loggia d'entrée offrant une pièce en plus pour le logement; un balcon filant prolongeant les espaces du séjour. Ces intervalles graduées entre sphères publique et privée ouvrent à de nouvelles qualités pour le logement collectif.









programme : planification urbaine
lieu : donauworth *de
maîtrise d'ouvrage : ville de donauworth
maîtrise d’œuvre : hub architectes (t.dantec, r.masson, r.lombard) + v.cordebar architecte, avec bianchimajer, arga16
surface/coût travaux : 32 ha / nc
statut : lauréat europan 12 puis concours international restreint, 3 ème prix
Entre Nuremberg, Munich et Stuttgart, lovée dans une vallée du Danube, Donauworth est une ville qui offre un cadre de vie amène. L'ancienne caserne Alfred Delp, rétrocédée à la municipalité, ouvre 32ha de friches à un redéploiement urbain de grande ampleur. En cours de démolition, les infrastructures militaires vont disparaître.
Le nouvel aménagement s'inscrira dans son territoire par la prolongation des systèmes paysagers environnants. Une alternance de bandes «pleines», les coteaux boisés habités, et «vides», les prairies ouvertes, structure le nouveau quartier. La surface de lisière entre ville et campagne est démultipliée. La vue vers le lointain pour les logements supporte alors la constitution d'un tissu urbain densifié.
Cette organisation propose de n'urbaniser "que" 50% de la surface de la parcelle. En s'inscrivent dans la topographie existante, la répartition des bandes exploite les trois terrasses principales qui caractérisent le site. A chaque bande imperméable urbanisée correspond en aval une bande perméable paysagère conçue comme une surface tampon permettant la rétention et l'infiltration des eaux de pluie.




programme : centre culturel et visitor center de la ville de suncheon
lieu : suncheon *kr
maîtrise d'ouvrage : commune de suncheon
maîtrise d’œuvre : hub architectes (t.dantec, r.masson, s.mulas)
surface/coût travaux : 2300 m2 sdp / 12,1 M € ht
statut : concours international ouvert 2016
crédits : virginlemon
Au sud de la péninsule coréenne, Suncheon s'est développée au fond d'une baie exceptionnelle. La ville tente aujourd'hui de tirer parti de ce cadre pour dépasser son héritage industriel. Nous concevons le visitor center comme le manifeste de cette relation privilégiée entre ville et nature. Le plan carré comme représentation de la terre, le cercle du patio comme évocation du ciel, le bâtiment cultive la symbolique.
Sous une toiture cintrée évocatrice de l'architecture traditionnelle, les salles s’enroulent autour d'un patio. Aux angles du bâtiment, la hauteur est magnifiée pour les espaces emblématiques. Au centre, la hauteur est abaissée permettant de cadrer depuis le hall circulaire les cimes alentours. Telle un impluvium, la toiture recueille les eaux de pluie et dessine un jardin aquatique à l'image de la baie.
La toiture est constituée d'un réseau de câbles ancrés dans l'épais voile périphérique et solidarisés entre eux par un anneau suspendu au droit du patio. Les dalles de couverture sont en béton cellulaire fixées directement sur les câbles. Une sur-toiture en béton protégera l'étanchéité. Formant un velum paraboloïde dissymétrique, le dispositif constitue un défi technique à la mesure du nouvel équipement.









programme : atelier d'art floral japonais
lieu : paris 10e
maîtrise d'ouvrage : ikébanart sas
maîtrise d’œuvre : hub architectes (t.dantec, r.masson, s.ghorbanalinejad)
surface/coût travaux : 58 m2 sdp / 55 k € ht
statut : commande directe, mission complète, livraison 2016
crédits : alberto stievanin
L'ikébana est un art floral japonais qui existe depuis plus de treize siècles. A l'inverse de la tradition de composition occidentale accentuant la quantité de fleurs et de couleurs, les règles de l'ikébana mettent en scène l'harmonie du tryptique terre, ciel, humanité. Le nouvel espace Ikébanart traduira cette philosophie.
Pour digérer la configuration irrégulière de l'espace, un nouveau niveau est créé à 90cm de hauteur. Le noir du mdf teinté déplace alors l’horizon, le visiteur s’en trouve plongé dans un sol artificiel. Selon les aspérités de l'espace, cette grande plinthe prend la forme d'un podium, d'un grand établi ou d'un long banc.
Ce socle libère un ciel blanc à la géométrie pure, support visuel des jardins suspendus de kokédama. Un grand puits de lumière diffuse une lumière laiteuse, diaphane presque abstraite. La division du volume en hauteur transforme ainsi complètement la lecture d'un espace pourtant très fragmenté en plan.








programme : groupe scolaire, gymnase triple, accueil périscolaire, parking
lieu : arzier-le muids *ch
maîtrise d'ouvrage : commune d'arzier le muids
maîtrise d’œuvre : hub architectes mandataire (t.dantec, r.masson, s. mulas), avec chabloz et partenaires, begelec, pierre chuard, ba consulting
surface/coût travaux : 7000 m2 sdp / 21M chf ht
statut : concours international ouvert 2015
crédits : virginlemon
Le gymnase triple et le groupe scolaire sont les deux composantes homologues et complémentaires du projet éducatif pour le nouvel établissement d'Arzier-Le Muids. Plutôt que de classiquement construire deux bâtiments indépendants, nous proposons d’associer ces deux composantes éducatives dans un ensemble cohérent.
Les fonctions sont réunies dans un même bâtiment aux deux ailes rigoureusement symétriques. Les programmes ne sont pas séparés mais juxtaposés, les circulations et les équipements sont mutualisés. Le noyau commun permet un usage de manière indépendante ou reliée. Cette organisation vise à créer un lieu ouvert et flexible même au-delà des horaires scolaires.
Le bâtiment ainsi compacté est construit sur la moitié sud de la parcelle. La partie nord est quant à elle dédiée aux activités de plein air. Les deux polarités sont cadrées par un préau périphérique. Cette grande galerie magnifie la dimension horizontale du nouvel équipement qui, tapi dans le terrain, s'inscrit discrètement dans l'étendue d'un paysage encore largement préservé, rural, serein.







programme : reconversion d'une usine en espace culturel
lieu : bologne *it
maîtrise d'ouvrage : nute partecipazioni ltd
maîtrise d’œuvre : hub architectes mandataire (t.dantec, r.masson, m.notter) avec 5+1aa paris
surface/coût travaux : 3500 m2 sdp / nc
statut : concours international ouvert 2015
crédits : virginlemon
Construite par l'architecte italien Pierluigi Cervellati, l’ancienne usine La perla est un palais brutaliste à la gloire de la confection textile. Aujourd'hui tombé en désuétude, le palais se cherche une nouvelle destinée dans la culture. Au cœur d'une commune périphérique de Bologne, nous héritons d’une centralité faible. Quelle infrastructure culturelle ici?
A l'instar des SESC brésiliens, nous proposons un espace de coproduction culturelle où des programmes aussi spécifiques qu'une salle de sport/spectacle, une crèche, une pépinière d'entreprises, un espace d'exposition peuvent s'associer. Nous poursuivons alors le processus d'extension naturelle du complexe par l'accrétion de nouveaux bâtiments spécifiques autour de l'ancien atelier principal.
La surface de l'ancien atelier principal, laissée libre, recréé au centre du dispositif la qualité de l’espace public bolonais et de son exceptionnel réseau d'arcades. Monumentale, cette place centrale couverte de nature publique sert les usages quotidiens comme les usages d'exception. Entre grand vestibule et jardin d’hiver, l’atelier est l’espace commun des programmes agglomérés autour.








programme : bâtiment universitaire, gare et learning center
lieu : helsinki *fi
maîtrise d'ouvrage : aalto university
maîtrise d’œuvre : hub architectes (t.dantec, r.masson, s. le gallo) + nicolas lombardi architecture
surface/coût travaux : 53 000 m2 sdp / nc
statut : concours international ouvert 2012
Construite dès 1949 en proue de l'idyllique péninsule d'Otaniemi, l'université Aalto est conçue dans la lignée des campus verts d'Olmsted. Mais aujourd'hui l’université est lancée dans la compétition des grands clusters mondiaux. Nouvelle ligne de métro et densification signent la (ré)intégration du campus Aalto dans la métropole. La stratégie urbaine mariera les qualités du village académique d'Olmsted et l'hyper-connectivité contemporaine.
Plutôt que de massivement densifier autour de la future gare, nous répartissons sur la presqu'île les trois nouvelles composantes du campus: école d'architecture, gare et learning center. Ces épicentres d'intensités différenciées s'adressent respectivement aux échelles du campus, de la métropole et du monde. Ces fragments d'architecture disséminés dans le paysage ne trahissent pas la structure urbaine ouverte d'Aalto.
Le learning center est construit comme une île iconique et, qui tel un rocher affleurant de l’eau, devient le lieu privilégié de la contemplation du paysage. La nouvelle école d’arts est conçue comme une enfilade de 17 bâtiments spécifiques assemblés comme une petite ville. La nouvelle gare est travaillée comme un réseau de tunnels habités connectant efficacement les écoles et ouverts par de larges douves végétalisées.







programme : logements, bureaux et commerces
lieu : barcelone *es
maîtrise d'ouvrage : future arquitecturas
maîtrise d’œuvre : hub architectes (t.dantec, r.masson)
surface/coût travaux : 140 000 m² sdp / nc
statut : appel à idées 2012, 2e prix
crédits : virginlemon
Le plan de Cerdà a définitivement conféré à Barcelone sa forme et son identité particulières. Les îlots de Cerdà, bien qu'ils aient connu une densification importante, demeurent la forme paradigmatique d'un tissu qui supporte encore un centre vivant, habité et plurifonctionnel. Avec Cerdà, le modèle de la ville traditionnelle a peut-être vécu plus facilement que dans d'autres villes européennes.
Cerdà3 est hyper-contextuel. Sa morphologie et son image résultent strictement d'une augmentation des qualités « déjà-là » des îlots barcelonais. La largeur maximale de l’îlot est reportée à la verticale. Les chanfreins face aux places d'angle prennent en hauteur une envergure exacerbée. La répartition des programmes par orientation des façades conforte la mixité des fonctions à tous les niveaux.
Avec Gaudi et Nouvel, Barcelone possède deux émergences iconiques symbolisant leurs époques respectives. La proposition se concentre alors sur l'îlot de Cerdà en sa forme maximisée sans entrer dans la course à l’image. Cerdà3 est un hybride entre l’îlot et la tour, c'est le Rockefeller center de Barcelone.